Rodinný dům - Klatovy
V lůnu přírody, pryč od ruchu města, Šumava na dohled. To jsou Těšetiny. A na jejich okraji je schovaný pozemek jako z pohádky. Klienti byli již na začátku rozhodnutí o tom, že bude jejich dům dřevostavba. Také věděli, že to bude dřevostavba z CLT panelů.
Každý projekt své komplikace, nějaké omezení. V tomto případě byl hlavní limit poměrně netradiční. Na pozemku již byly vybudované základy. Předchozí majitelé pozemku plánovali výstavbu rodinného domu, ovšem z jejich záměru stihli zrealizovat pouze základovou desku. Na počátku tedy byla otázka, zda a do jaké míry bude možné již vybudované základy použít.
Z prvních skic bylo patrné, že se dům na původní základy bez větších kompromisů překvapivě podaří umístit. Pozice na pozemku, celková plocha i orientace ke světovým stranám byly poměrně příhodné. Rozhodnutí použít původní základy bylo velice důležité z hlediska úspory investičních nákladů. Místo do bourání původních základů a stavění nových, mohly být prostředky vloženy do CLT konstrukce, kvalitních oken a do interiéru.
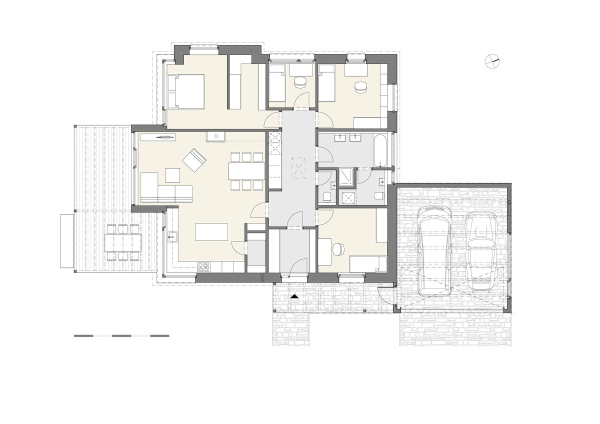
Dispozičně je dům řešený jako trojtrakt. Ve středu dispozice se nachází vstupní a komunikační část. Srdcem domu je kuchyň propojená s obývacím pokojem a jídelnou. Odtud je vstup na prostornou terasu a na zahradu. Kromě dvou dětských pokojů a ložnice rodičů se šatnou se podařilo najít místo i na pracovnu, která může být využita také jako hostinský pokoj. Díky prostoru pro niku v půdorysu základů se v ložnici rodičů podařilo vytvořit prostorné sedací okno.
Nosná konstrukce je provedena z masivních dřevěných CLT panelů. Panely jsou v interiéru přiznané bez dalšího opláštění. Díky tomu prostor krásně dýchá dřevem a stěny působí hřejivým dojmem. Původním plánem bylo nechat obývací pokoj s jídelnou a kuchyní otevřený do krovu. Z důvodu úspory nákladů bylo od této myšlenky upuštěno. Díky tomu ale získali majitelé větší prostor půdy.
Tradiční tvar domu se sedlovou střechou vychází z podmínek územního plánu. I vzhledem k okolní zástavbě jsme se nesnažili s tímto regulativem bojovat. Soudobého vzhledu při použití tradičního tvaru střechy bylo docíleno použitím minimálního přesahu střešní konstrukce. Charakteristickým prvkem domu jsou kruhová okna umístěná ve štítových stěnách.
Realizace: 3AE s.r.o.
Dodavatel konstrukce: Novatop, Agrpo Nova, a.s.
Foto: Petr Polák




















